
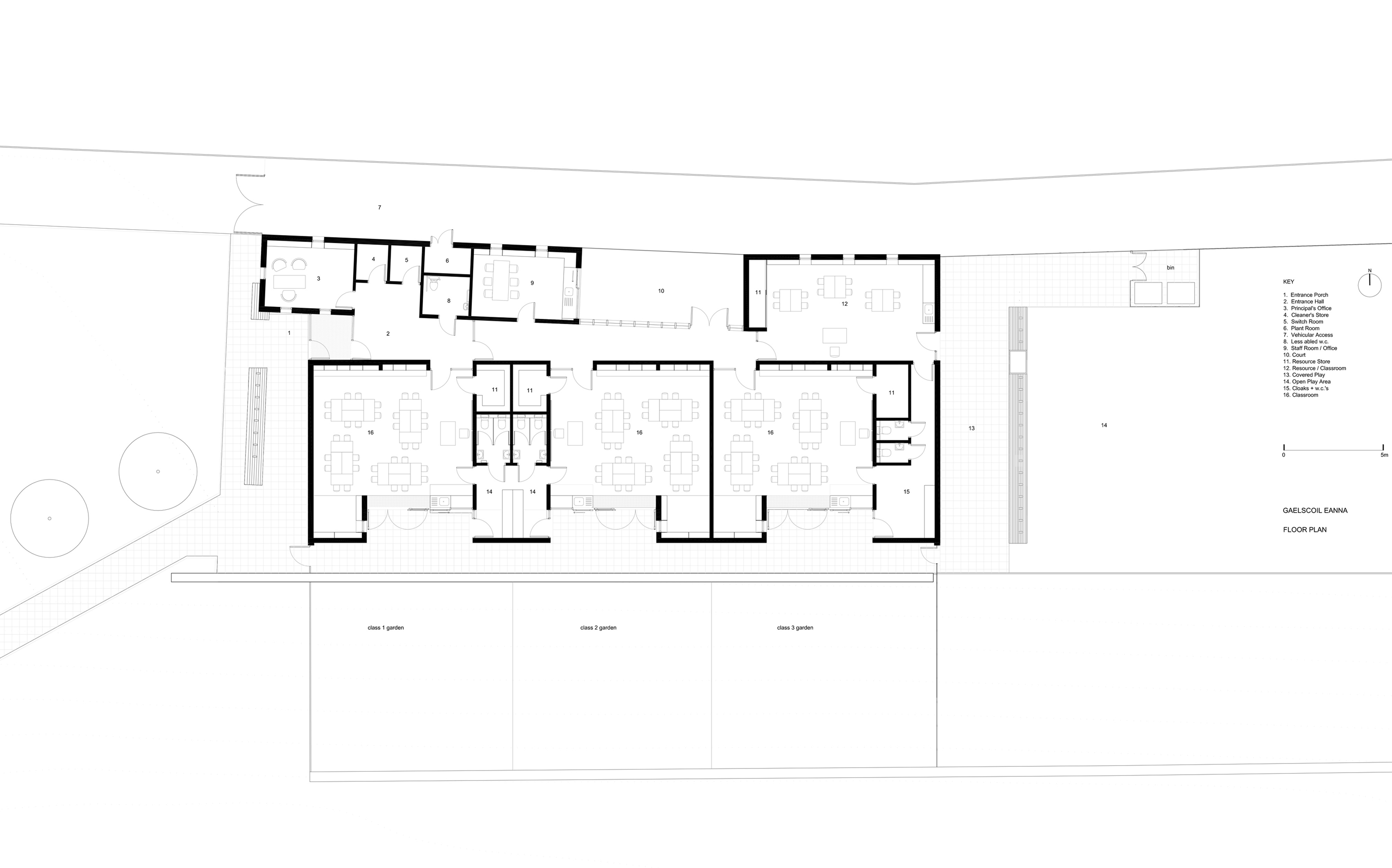
As part of the Department of Education’s provision of accommodation for growing schools, the scheme involved a new three classroom, modular and demountable primary school to replace a group of existing run down and spatially inadequate mobile classrooms.
Our first step was to critique the buildings previously built within this typology in Northern Ireland, which has previously cost as much if not more to build as permanent traditional construction, largely due to a doubling up of steel structure to enable modules to be transported and craned onto site. With their temporary nature and appearance, parents of prospective pupils often feel unconvinced and reluctant, and the school can struggle to embed itself within community consciousness.
Using this project almost as a prototype for ideas we were researching in parallel, we developed an entirely timber kit–of–parts, seeking to completely eradicate the excessive steel structure typically used in this typology. The significant savings made as a result were invested back into the architecture of the learning environment.

Each desk in each classroom would benefit from north daylight and a view of the sky. Covered external spaces opened directly as extensions to the classroom. Structure would be exposed and adopted as classroom display. Walls would be lined in Lacquered Birch that would form built–in shelving and reveals to lend the relatively thin walls an apparent depth and solidity. The plinth and thresholds needed to appear to be permanently set within existing ground, and floors should feel solid underfoot. Through the architecture, the school would have at least the perception of a permanent building within the community.
This project was completed while working in previous employment with ARD Ciaran Mackel Architects. The new Gaelscoil was completed on budget and on schedule, and has become a template adapted for several more education buildings since.







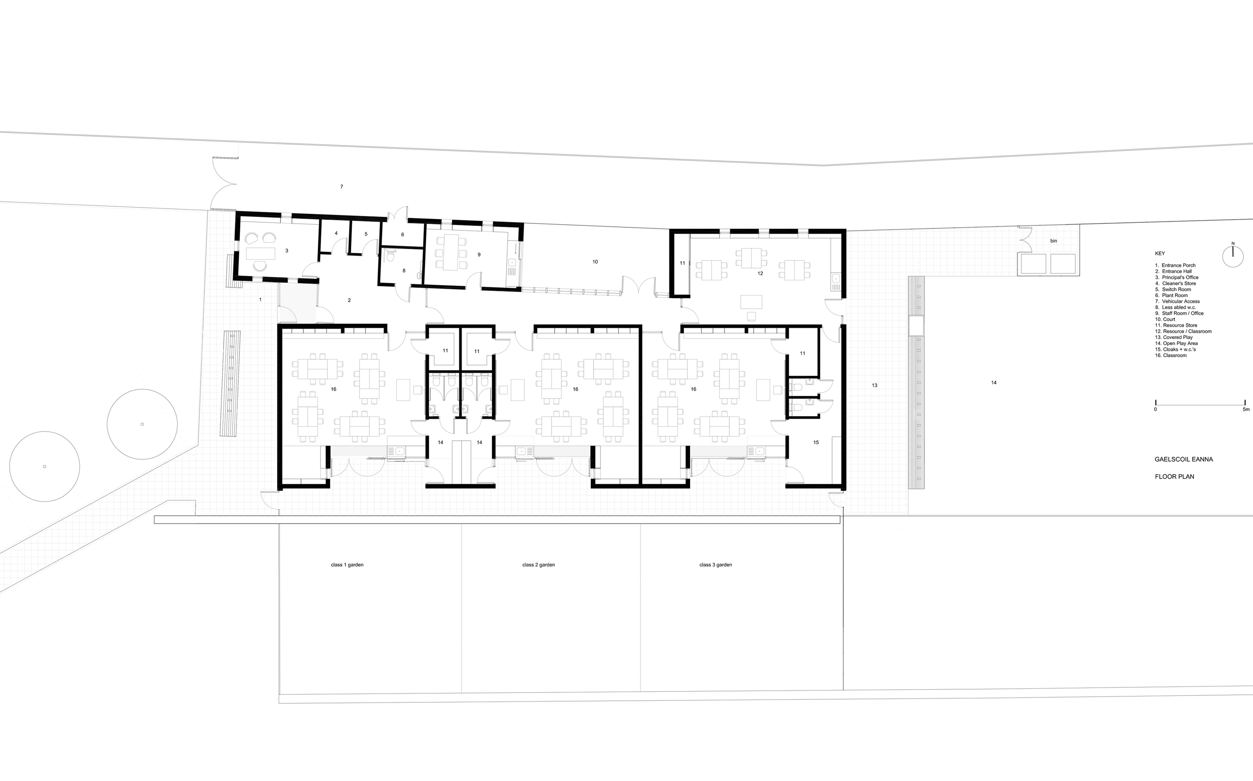
As part of the Department of Education’s provision of accommodation for growing schools, the scheme involved a new three classroom, modular and demountable primary school to replace a group of existing run down and spatially inadequate mobile classrooms.
Our first step was to critique the buildings previously built within this typology in Northern Ireland, which has previously cost as much if not more to build as permanent traditional construction, largely due to a doubling up of steel structure to enable modules to be transported and craned onto site. With their temporary nature and appearance, parents of prospective pupils often feel unconvinced and reluctant, and the school can struggle to embed itself within community consciousness.
Using this project almost as a prototype for ideas we were researching in parallel, we developed an entirely timber kit–of–parts, seeking to completely eradicate the excessive steel structure typically used in this typology. The significant savings made as a result were invested back into the architecture of the learning environment.

Each desk in each classroom would benefit from north daylight and a view of the sky. Covered external spaces opened directly as extensions to the classroom. Structure would be exposed and adopted as classroom display. Walls would be lined in Lacquered Birch that would form built–in shelving and reveals to lend the relatively thin walls an apparent depth and solidity. The plinth and thresholds needed to appear to be permanently set within existing ground, and floors should feel solid underfoot. Through the architecture, the school would have at least the perception of a permanent building within the community.
This project was completed while working in previous employment with ARD Ciaran Mackel Architects. The new Gaelscoil was completed on budget and on schedule, and has become a template adapted for several more education buildings since.





