
The Business Cluster and Community Grant Programme first opened in December 2020, providing businesses and communities with the opportunity to avail of funding to deliver physical interventions and streetscape improvements. £1.1 million was provided to community groups, social economy businesses, charities and business organisations, facilitating the delivery of a wide range of environmental programmes such as community gardens, shop front improvements, lighting schemes and mean while use to gap sites.
The aim of the programme is to support proposals that will align to A Bolder Vision, improve footfall for businesses and encourage people to live work and invest in the city.

Each site had required different interventions. In many cases, streets were enhanced through bespoke urban street furniture subtle and derived from its local context. The key aim for the street elements was to blur the lines between public and private ownership. This helped to bring intrigue and instigate footfall. Very often in the context of Belfast there is a lack of opportunities for seating due to the perception of anti social behaviour. Opportunities for seating is vital in streets to bring increased dwell time. The design team had dealt with this by including built in seating elements that can be folded–in and folded–out after business hours.


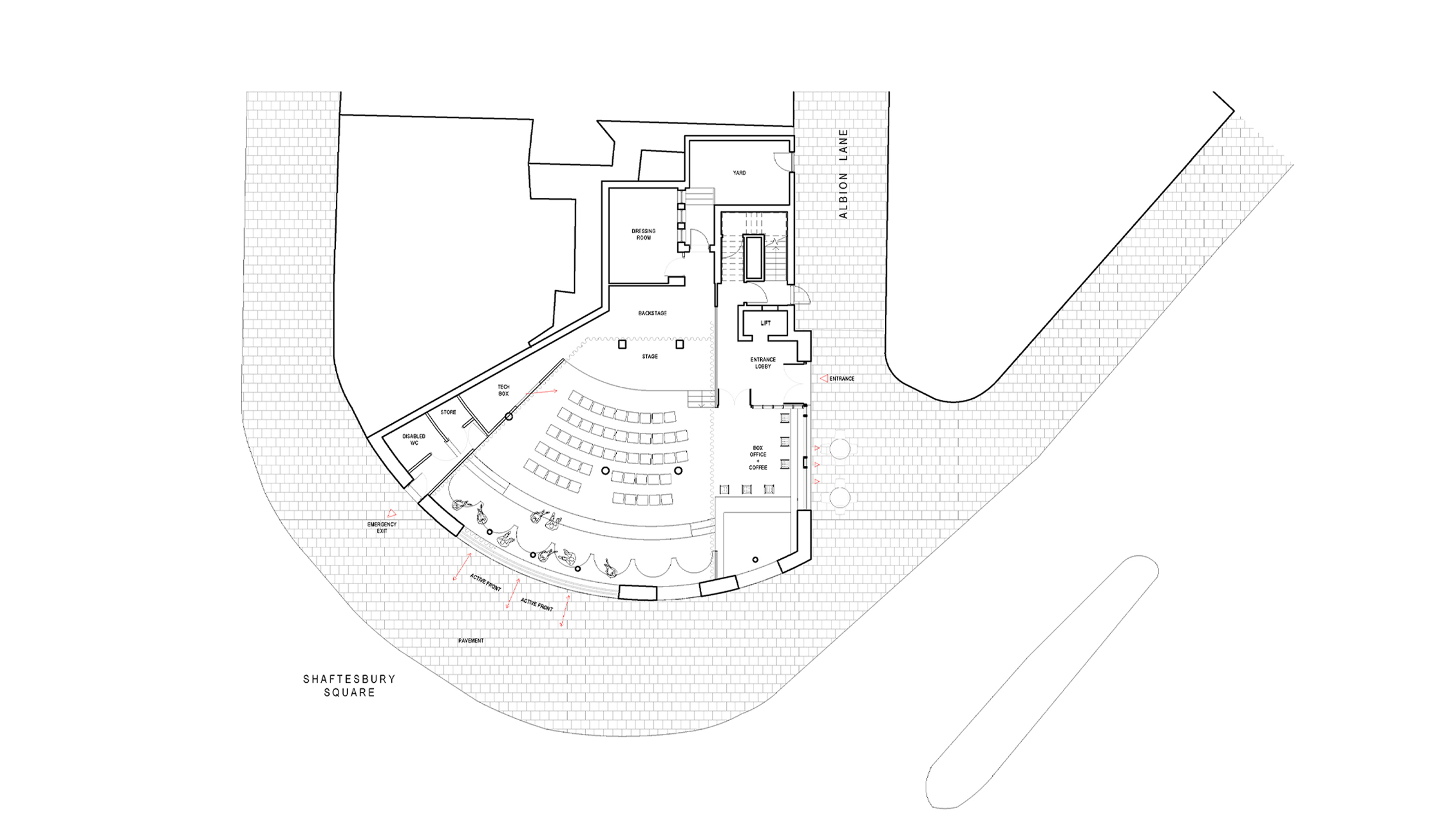
The needs for each business cluster was vast. The Accidental Theatre, for example, required a reconnection of the building to the urban realm. The windows are often boarded in the attempt to mitigate against anti social behaviour. Our aim here was to revitalise the building through ground floor level activation and provide frontage to the street to create engagement, street level presence, overlook and passive surveillance.





