
MMAS were appointed to establish a strategy plan for the regeneration of an existing Mill building in North Howard Street, Belfast. The Mill currently lies derelict and required careful consideration of its context due to the political nature of the site, stradling between an interface. A negotiation of the boundaries was key to unlocking the scheme. A macro strategy was therefore fundamental for the activation of the Mill, investigating potential new connections to the wider area. Additionally, there was also the building strategy which explored the spaces from within the building..


North Howard Street currently lacks definition as a result of stradling both an interface and sandwiched between two security gates that are locked at 7.30pm on both sides of the street. Access to the building is direct from the street taking the visitor/ user direction into what was, the offices at Ground Floor, with access restricted due to cars daily parking on the footpath. Two vehicular access points are located at each gable end of the mill. However, these have not been opened for many years.

Historically, set between 3 mills, North Howard Street would have been a well used path for industrial workers and everyday pedestrians. This is highly contrasting with the present condition, where the mills are now either demolished, inactive or derelict. As a result, North Howard Street has become a street for road users as opposed to everyday pedestrian use. It is our aim to restore some of the historical condition that made the pedestrian experience safe and engaging.


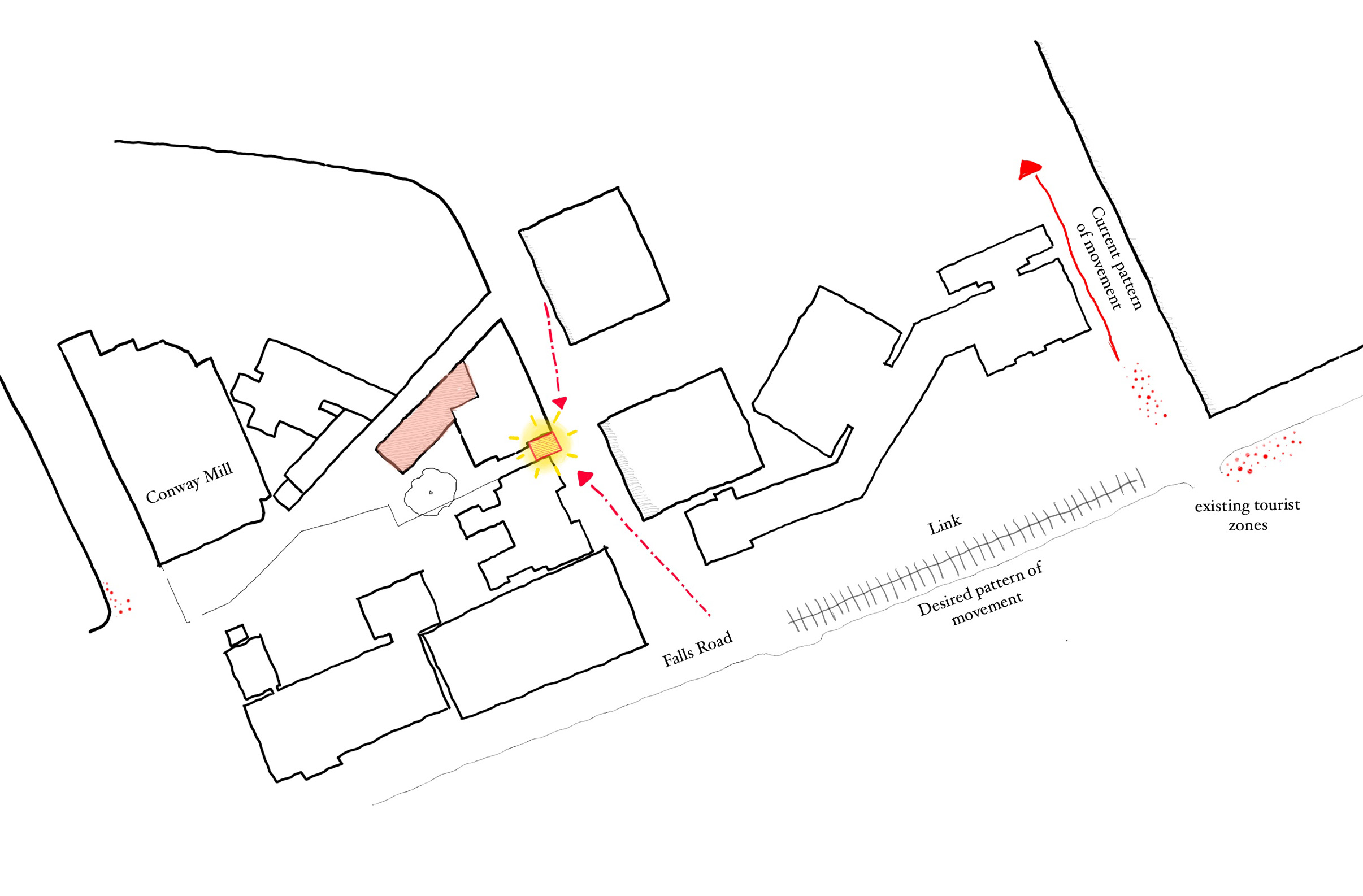
As part of our greater strategy plan for the area, we identified opportunities to connect North Howard Street with the Conway Mill. This would help activate North Howard Street through increased footfall and provide greater and more cohesive external space for local residents, communities and various user groups.


The Falls Road is an arterial route with a constant flow of pedestrians and tourist which we hope to capitalise on. Our intention therefore is to propose a nodal point here that will help activate the scheme, engage with street users and attract footfall.
A new public entrance shall be created that needs to be prominent and eye catching to stimulate intrigue and curiosity acting as a route/ connector/ gateway to bringing the mill into the urban realm. A fundamental concern to re–purposing North Howard Street is how we give it a visual presence/ identity to the Falls Road for an unassuming passerby.




